Back to price listFlat A2.02.5
Flat A2.02.5
Available
Available
14,035,080 CZK with VAT
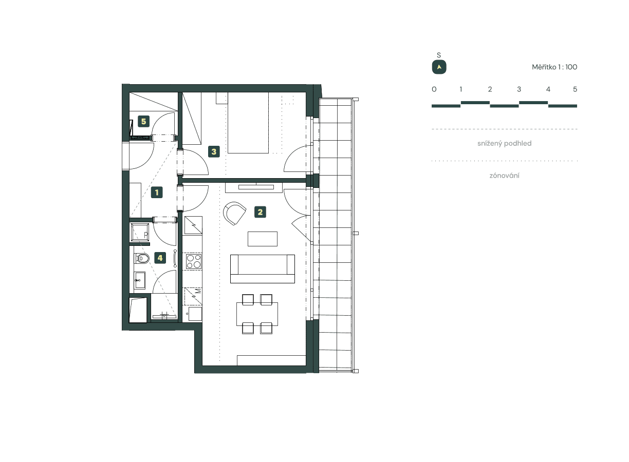
2+kkFlat disposition
54.2 m²Flat area
2. ndFloor
EastFlat orientation
FloorA2 | 2
Flat disposition2+kk
Flat area54.2 m²
Usable area50.7 m²
Balcony11.6 m²
Cellar3PP-SK070
Parking space number3PP-GS097
Air conditioningNE
RekuperationNE
Standard equipmentModern

View

Floor plan

Position

You might like

A1.01.1
9,685,000 CZK
Reserved
1. GFFloor
2+kkFlat disposition
39.6 m²Flat area
7.6 m²Balcony
-Terrace

A1.01.2
9,904,000 CZK
Reserved
1. GFFloor
2+kkFlat disposition
44.5 m²Flat area
7.6 m²Balcony
-Terrace

A1.01.3
13,069,000 CZK
Free
1. GFFloor
2+kkFlat disposition
47.4 m²Flat area
-Balcony
20.4 m²Terrace
Equipment
Flexible financing
Pay just 15%
of the purchase
price, with the remaining
balance due upon
completion.
A thoughtfully designed financing model that offers confidence and peace of mind when choosing your new home.
CONTACT US
Interested in the Delarg project? Contact us for more information or to schedule a personal meeting.


