Byt C1.03.1

Volný
Volný
13 383 360 s DPH
2+kkDispozice
61.2 m²Celková plocha
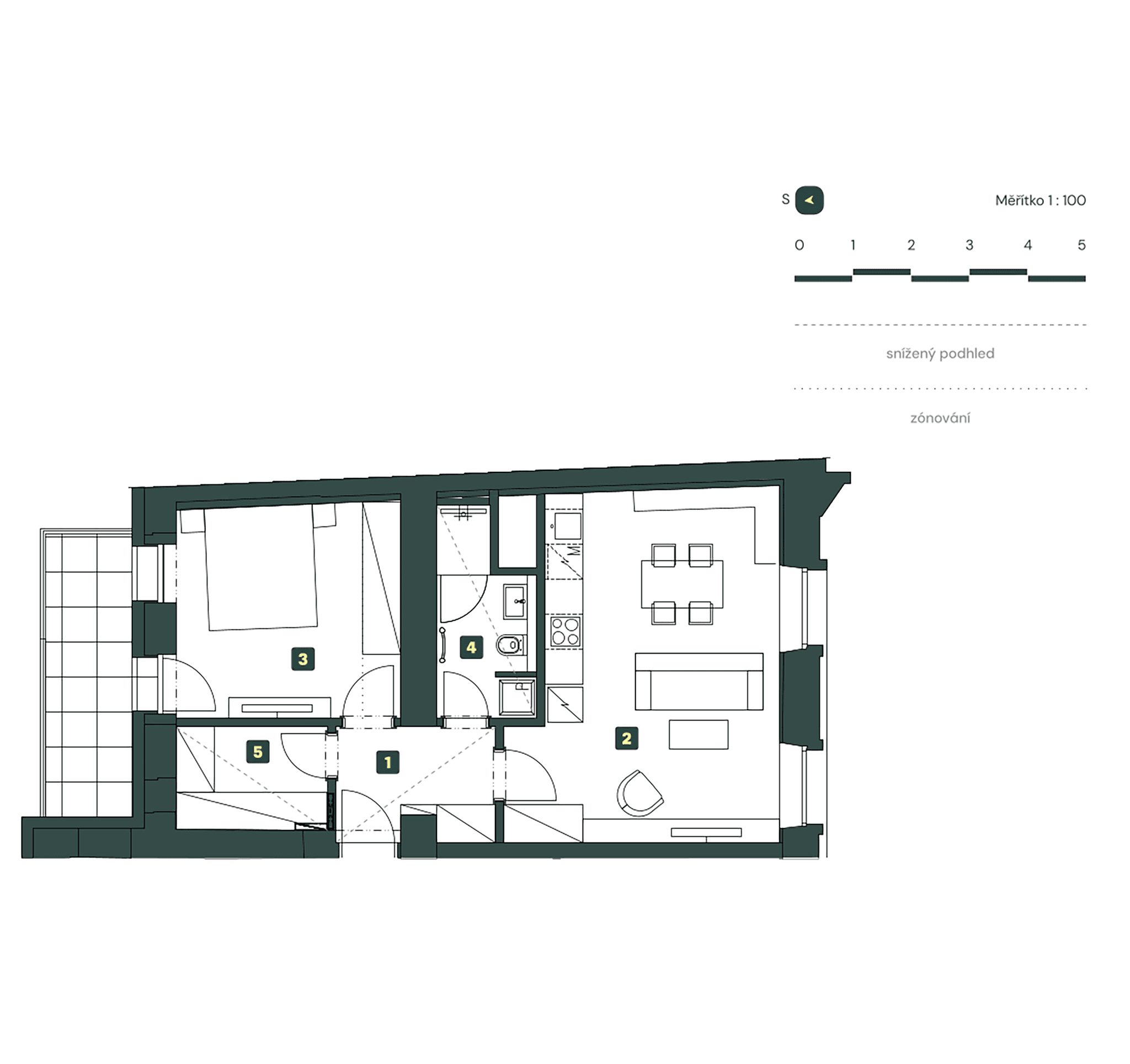
3. NPPodlaží
Server-jihOrientace
PodlažíC1 | 3
Dispozice2+kk
Celková plocha61.2 m²
Užitná plocha55.1 m²
Balkon7.2 m²
Sklep3PP-SK055
Číslo parkovacího stání3PP-GS122
KlimatizaceNE
RekuperaceANO
Zařízení ve standarduICONIC
Plan 1505892e-0135-4695-b288-cf5362d3d663
Pohled
Picture 9942fbb7-057e-454e-9d96-af32ba4b12e0
schéma podlaží
Picture 1e22b961-c733-4c71-bbcb-f43c35970501
Situace
Picture 1b7b4a40-c412-4a29-90ba-fe81c1fff063
alt
alt
alt
alt
alt

Máte zájem o tento byt?

Mohlo by se vám líbit

A1.01.1

A1.01.1

9 685 000

Rezervovaný
1. NPPodlaží
2+kkDispozice
39.6 m²Celková plocha
7.6 m²Balkon
-Terasa
Recovery
Příslušenství
Zobrazit detail
A1.01.2

A1.01.2

9 904 000

Rezervovaný
1. NPPodlaží
2+kkDispozice
44.5 m²Celková plocha
7.6 m²Balkon
-Terasa
Recovery
Příslušenství
Zobrazit detail
A1.01.3

A1.01.3

13 069 000

Volný
1. NPPodlaží
2+kkDispozice
47.4 m²Celková plocha
-Balkon
20.4 m²Terasa
Příslušenství
Zobrazit detail
Výhodné financování

Stačí uhradit 15 %
z kupní ceny a
zbytek doplatit
až po dokončení.

Promyšlené financování, které přináší jistotu i klid při rozhodování o novém domově.

Kontaktujte nás

Zaujal vás náš projekt Delarg? Kontaktujte nás pro více informací nebo rezervaci osobní schůzky.

Souhlasím se zasíláním novinek

Vaše osobní údaje zpracováváme v souladu s GDPR.
Více informací o zpracování osobních údajů.

Tato stránka je chráněna testem reCAPTCHA a Google.
Pro více informací si přečtěte: Ochrana Soukromí a smluvní podmínky.

Nevybral sis nebo si nevíš
rady? My ti pomůžeme!